Проект 95 №703

Цена строительства от 9 600 000 ₽* * Стоимость не является окончательной
Заявка на консультацию
  • Общая площадь 102 м2
  • Длина 13.23 м
  • Ширина 11.6 м
  • Материал стен Газобетон/пеноблок
  • Количество этажей 1
  • Подвал Нет
  • Мансарда без мансарды
  • Гараж Нет
  • Терраса Нет
  • Проживание Круглогодичное
  • Количество комнат 2
  • Количество спален 1
  • Количество санузлов 1
  • Вид проекта дом
  • Застройщик Беккер Хаус
  • Архитектурный стиль Европейский
  • Отделка фасада Лицевой кирпич
  • Крыша Плоская
  • Можно купить домокомплект Нет
  • Модульный тип строения Нет
Планировки
Описание проекта

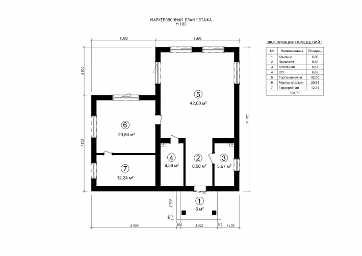
Здание представляет собой одноэтажный жилой дом. В доме запроектированы крыльцо, прихожая, кухня-гостинная, котельная, санузел, мастер-спальня,гардеробная. Кровля дома - плоская, не эксплуатируемая. Фундамент монолитная ж/б плита.

Вас может заинтересовать
Вас может заинтересовать

Выбор местоположения

Задать вопрос / написать нам

E-mail: domgis@mail.ru

Мы свяжемся с Вами в течение дня.

Тех. поддержка
Предмет обращения:
Тукущая страница

Мы свяжемся с Вами в течение дня.

Обратный звонок
Обратный звонок
Выберите ваш город
Пожаловаться

Объявление опубликовано.
Изменения сохранены

Период публикации - бессрочный, при условии подтверждения актуальности каждые 50 дней. Уведомления будут отправляться на Вашу электронную почту.

Выберите причину снятия с публикации

Снятые с публикации объявления не участвуют в поиске и недоступны для подробного просмотра.

Для повторной публикации нажмите «Вернуть в публикацию»