Модерн 71 №915

Цена строительства от 5 550 000 ₽* * Стоимость не является окончательной
Заявка на консультацию
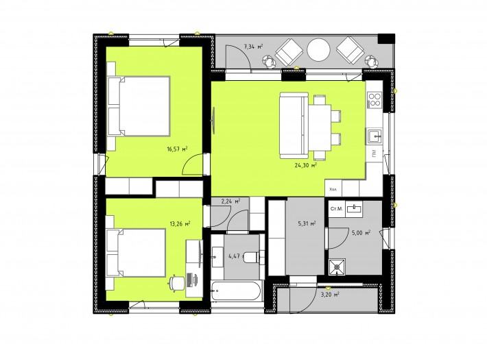
  • Общая площадь 71 м2
  • Длина 9.65 м
  • Ширина 8.9 м
  • Материал стен Газобетон/пеноблок
  • Количество этажей 1
  • Подвал Нет
  • Мансарда без мансарды
  • Гараж Нет
  • Терраса Нет
  • Проживание Круглогодичное
  • Количество комнат 3
  • Количество спален 2
  • Количество санузлов 1
  • Вид проекта дом
  • Застройщик ДМ ГРУПП
  • Архитектурный стиль Модерн
  • Отделка фасада Штукатурка
  • Крыша Плоская
  • Можно купить домокомплект Нет
  • Модульный тип строения Нет
Планировки
Описание проекта

Комплектация «Тёплый контур» — 5,55 млн ₽

Комплектация «White Box» — 8,54 млн ₽

Современный дом от застройщика «ДМ Групп». Кухня-гостиная с панорамными окнами, выходом на террасу и две спальни создают комфортное пространство для жизни.

Дом сдается в отделке white box. Гипсовая штукатурка Knauf под обои.

Комплектация дома:

- Утепленный фундамент;

- Отмостка: Мягкая;

- Стены: АГБ 300 мм с утеплением 100мм. Перегородки из блока 150мм. Высота этажа 2,85м;

- Фасад: Штукатурка;

- Плоская кровля: Выполнена из ПВХ мембраны по системе Технониколь со сроком службы от 20 лет. Пароизоляция битумный наплавляемый материал, утепление экструдированный пенополистирол XPS 200 мм, мембрана 1,5 мм;

- Дверь входная: Тëплый алюминий с терморазрывом и тонированным стеклом;

- Окна: Энергоэффективный 5-ти камерный профиль Veka, с замкнутым армированием, стеклопакет 40 мм. Фурнитура Winkhaus;

- Электромонтаж: Провода использованы ГОСТ ВВГнг LS. Все магистрали в гофре, на каждую комнату установлен отдельный дифференциальный автомат. Заземление.

В электрощитке есть реле контроля напряжения, которое защитит бытовую технику от нежелательных перепадов напряжения;

- Отопление: Выполнено трубой stout 16х2 металлопластик.Теплые подоконники. Нет соединений в полу цельная труба от подоконника до коллектора. Теплые полы выполнены с шагом 15 см в каждой комнате отдельный контур, что позволяет регулировать температуру в каждом помещении по разному. Разводка умного отопления. Электрический котел и бак теплообменника выполнен из нержавеющей стали, так же как и тэны;

- Водопровод: Выполнен по технологии Axiopress с использованием трубы и фитингов PEXa. Реализована циркуляция горячей воды, что позволяет практически сразу пользоваться горячей водой. Вся система перед заливкой опрессована давлением 8 бар;

- Вентиляция: Естественная;

- Канализация: Переливной септик V=7,5м3;

- Ливневая канализация: Сбор осадков выполнен с помощью внутреннего водостока с подогревом и отводом стоков с крыши в ливневый колодец;

- Пол: Залит под чистовую отделку;

Вас может заинтересовать
Вас может заинтересовать

Выбор местоположения

Задать вопрос / написать нам

E-mail: domgis@mail.ru

Мы свяжемся с Вами в течение дня.

Тех. поддержка
Предмет обращения:
Тукущая страница

Мы свяжемся с Вами в течение дня.

Уведомление
Предмет обращения:
Тукущая страница
Обратный звонок
Обратный звонок
Выберите ваш город
Пожаловаться

Объявление опубликовано.
Изменения сохранены

Период публикации - бессрочный, при условии подтверждения актуальности каждые 50 дней. Уведомления будут отправляться на Вашу электронную почту.

Выберите причину снятия с публикации

Снятые с публикации объявления не участвуют в поиске и недоступны для подробного просмотра.

Для повторной публикации нажмите «Вернуть в публикацию»