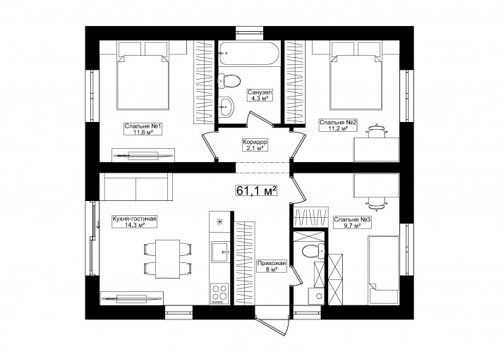
Компактный функциональный одноэтажный дом с оригинальным фасадом и двухскатной кровлей. Имеет 2 планировки две спальни или 3 спальни, кухню гостиную с выходом на террасу, котельную-постирочную, в которой можно разместить второй санузел.
Комплектации
Минимальная: 5 000 000 р.
Средняя: 5 750 000 р.
Полная: 6 450 000 р.
Данный дом от компании "Инженерные решения" по технологии сип-панелей. Подробнее
Выбор местоположения
Мы свяжемся с Вами в течение дня.