ГНАДЕНВАЛЬД №867

Цена строительства от 8 550 000 ₽* * Стоимость не является окончательной
Заявка на консультацию
  • Общая площадь 104 м2
  • Длина 12.5 м
  • Ширина 17.7 м
  • Материал стен Кирпич
  • Количество этажей 1
  • Подвал Нет
  • Мансарда без мансарды
  • Гараж Нет
  • Терраса Да
  • Проживание Круглогодичное
  • Количество комнат 4
  • Количество спален 3
  • Количество санузлов 1
  • Вид проекта дом
  • Застройщик Симпл хаус
  • Архитектурный стиль Современный
  • Отделка фасада Комбинированная
  • Крыша Плоская
  • Можно купить домокомплект Нет
  • Модульный тип строения Нет
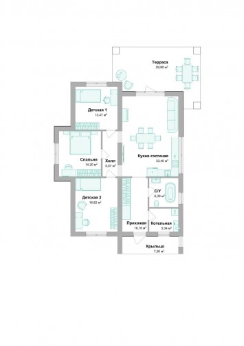
Планировки
Описание проекта

Стильный дом с плоской крышей и террасой. Отделка дома выполнена из штукатурки с деревянными вставками из планкена. Большие панорамные окна в каждой комнате обеспечивают естественное освещение и открывают вид на окружающий ландшафт, а большая терраса может стать местом для проведения семейных праздников, вечеринок с друзьями или отдыха на свежем воздухе.

Дом подходит для проживания семьи из 3-5 человек. Здесь расположены просторная кухня-гостиная с выходом на террасу, три спальни, а также изолированный от спален санузел, что позволит сохранить покой и сон домочадцев.

Площадь прихожей рассчитана на организацию большого места хранения вещей. Этот дом для тех, кто выбирает комфорт, стиль и функциональность.

Фасад - декоративная штукатурка

Комплектация STANDART - 8 550 000 р.

Комплектация WHITE BOX - 10 200 000 р.

Вас может заинтересовать
Вас может заинтересовать

Выбор местоположения

Задать вопрос / написать нам

E-mail: domgis@mail.ru

Мы свяжемся с Вами в течение дня.

Тех. поддержка
Предмет обращения:
Тукущая страница

Мы свяжемся с Вами в течение дня.

Уведомление
Предмет обращения:
Тукущая страница
Обратный звонок
Обратный звонок
Выберите ваш город
Пожаловаться

Объявление опубликовано.
Изменения сохранены

Период публикации - бессрочный, при условии подтверждения актуальности каждые 50 дней. Уведомления будут отправляться на Вашу электронную почту.

Выберите причину снятия с публикации

Снятые с публикации объявления не участвуют в поиске и недоступны для подробного просмотра.

Для повторной публикации нажмите «Вернуть в публикацию»